气动薄膜衬氟调节阀
ZJHF46 气动衬氟调节阀
一、气动衬氟调节阀 概述
ZJHF46系列精小型气动衬氟调节阀采用顶部导向结构,配用多弹簧执行机构,具有结构紧凑、重量轻、动作灵敏、流体通道呈S流线型、压降损失小、阀容量大、流量特性精确、拆装方便等优点。广泛应用于精确控制气体、液体等介质的工艺参数对压力、流量、温度、液位保持在给定值。特别适用于允许泄漏量小且阀前后压差不大的场合。本系列产品有标准型、调节切断型。产品公称压力等级有PN0.6、1.0、1.6、2.5、class 150LB;公称通径范围DN20~300;使用温度由-20℃~+200℃范围内多种档次;泄漏等级VI级,流量特性为线性或等百分比。
ZJHF46系列精小型气动衬氟调节阀是气动单元组合仪表中的执行单元,配用电—气转换装置之后,也可进入电动单元组合仪表系统,他接受来自调节仪表的信号,直接改变调介质(如液体、气体、蒸汽等)的流量,使被控工艺参数(如温度、压力、流量等)保持在给定值。
二、气动衬氟调节阀 结构特征与原理
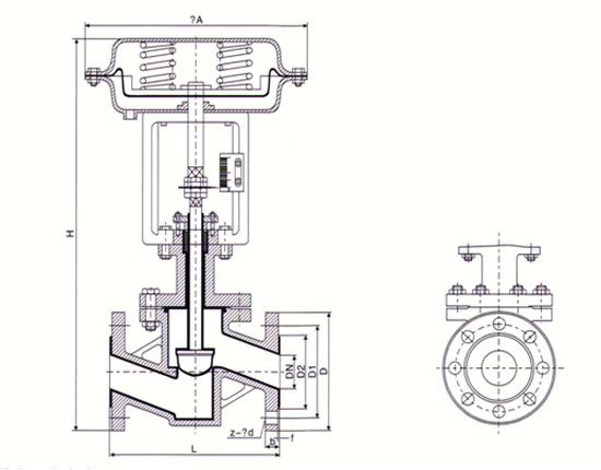
调节阀是由气动薄膜执行机构与调节机构二部分组成,其结构与原理见下图
三、气动衬氟调节阀 执行机构概述
执行机构是气动调节阀生产过程自动控制系统的重要组成部分,其有正反两种作用形式,当信号压力增加,推杆伸出膜室的叫正作用,与阀配合构成气关式(如图2a)。当信号压力增加,推杆推出膜室的叫反作用,与阀配合构成气开式(如图2b)。其原理:当信号压力输入膜室后,在膜片上产生推力,压缩弹簧,使推杆移动,带动阀杆,改变阀芯与阀座之间的流通面积,知道弹簧的反作用与信号压力作用在膜片上的推力想平衡,从而达到自动调节工艺参数之目的。
四、气动衬氟调节阀 规格与技术参数
|
公称通径mm |
20 |
25 |
32 |
40 |
50 |
65 |
80 |
100 |
125 |
150 |
200 |
250 |
300 |
||||||||
|
阀座直径mm |
10 |
12 |
15 |
20 |
25 |
32 |
40 |
50 |
65 |
80 |
100 |
125 |
150 |
200 |
250 |
300 |
|||||
|
额定流量系数Kv |
直线 |
1.8 |
2.8 |
4.4 |
6.9 |
11 |
17.6 |
27.5 |
44 |
69 |
110 |
176 |
275 |
440 |
690 |
1100 |
1760 |
||||
|
等百分比 |
1.6 |
2.5 |
4 |
6.3 |
10 |
16 |
25 |
40 |
63 |
100 |
160 |
250 |
400 |
630 |
1000 |
1600 |
|||||
|
公称压力MPa |
0.6、1.0、1.6、2.5 |
||||||||||||||||||||
|
行程 mm |
10 |
16 |
25 |
40 |
60 |
100 |
|||||||||||||||
|
膜片有效面积Ae(cm) |
280 |
400 |
630 |
1000 |
16000 |
||||||||||||||||
|
流量特性 |
直线、等百分比 |
||||||||||||||||||||
|
工作温度 ℃ |
-30℃~+150℃ |
||||||||||||||||||||
|
固有可调比R |
50:1 |
||||||||||||||||||||
|
信号范围Pr |
20~100、40~200、20~60、60~100、80~240 |
||||||||||||||||||||
|
气源压力MPa |
0.14、0.4 |
||||||||||||||||||||
|
允许压差MPa |
不限带定位器 |
5.3 |
3.7 |
23 |
13 |
0.85 |
0.74 |
0.47 |
0.30 |
0.27 |
0.18 |
0.11 |
0.12 |
0.08 |
0.05 |
0.04 |
0.03 |
||||
|
带定位器 |
6.4 |
6.4 |
5.5 |
3.01 |
2 |
1.7 |
1.1 |
0.71 |
0.63 |
0.41 |
0.26 |
0.28 |
0.20 |
0.11 |
0.08 |
0.05 |
|||||
|
接管螺纹 |
M16*15 |
||||||||||||||||||||
五、气动衬氟调节阀 主要性能指标
|
项目 |
一般调节阀 |
中温(柔性石墨填料)或波纹管密封调节阀 |
||||||||||||||||
|
不带定位器 |
带定位器 |
不带定位器 |
带定位器 |
|||||||||||||||
|
基本识差% |
±5 |
±1 |
±15 |
±4 |
||||||||||||||
|
回?? 差% |
±3 |
±1 |
±10 |
3 |
||||||||||||||
|
死?? 区% |
±3 |
±0.4 |
±8 |
1 |
||||||||||||||
|
始终点偏差% |
气开 |
始点 |
±2.5 |
±1 |
±6 |
±2.5 |
||||||||||||
|
终点 |
±5 |
±15 |
||||||||||||||||
|
气关 |
始点 |
±5 |
±15 |
|||||||||||||||
|
终点 |
±5 |
±6 |
||||||||||||||||
|
额定形成偏差% |
2.5 |
2.5 |
6 |
2.5 |
||||||||||||||
|
允许泄漏量 |
调节型L/h |
10-4×阀额定容量JP |
||||||||||||||||
|
调节切断阀 |
阀座直径 |
20 |
25 |
40 |
50 |
65 |
80 |
100 |
150 |
200 |
250 |
300 |
||||||
|
允许泄漏量 |
软密封:VI级 |
|||||||||||||||||
|
额定流量系数偏差% |
±10 |
|||||||||||||||||
|
固有流量特性偏差 |
符合IEC534-1976和GB/T 13927中规定的斜率要求 |
|||||||||||||||||
六、气动衬氟调节阀 主要零部件材料
|
零件名称 |
材 料 |
|
阀体、阀盖 |
HT200、ZG230~450、ZG1Cr18Ni9Ti |
|
衬里材料 |
F46、F4、F3、PO、PE、X、X3、PFA |
|
阀 芯 |
1Cr18Ni9Ti |
|
波纹管 |
F4 |
|
填 料 |
聚四氟乙烯、柔性石墨 |
|
弹 簧 |
60Si2Mn |
|
膜 盖 |
A3 |
|
阀杆、推杆 |
2Cr13/1Cr18Ni9Ti |
|
衬 套 |
2Cr13 |
七、气动衬氟调节阀 主要连接尺寸
八、气动衬氟调节阀 主要技术参数
|
公称通径 |
标准值 |
参数值 |
|||||||
|
DN(mm) |
PN1.0? PN1.6 |
||||||||
|
L |
D |
D1 |
D2 |
f |
b |
Z—φd |
φA |
H |
|
|
15 |
130 |
95 |
65 |
45 |
2 |
14 |
4—φ14 |
282 |
487 |
|
20 |
150 |
105 |
75 |
55 |
2 |
16 |
4—φ14 |
282 |
487 |
|
25 |
160 |
115 |
85 |
65 |
2 |
16 |
4—φ14 |
282 |
493 |
|
32 |
180 |
135 |
100 |
78 |
2 |
18 |
4—φ18 |
282 |
524 |
|
40 |
200 |
145 |
110 |
85 |
3 |
18 |
4—φ18 |
308 |
530 |
|
50 |
230 |
160 |
125 |
100 |
3 |
20 |
4—φ18 |
308 |
538 |
|
65 |
290 |
180 |
145 |
120 |
3 |
20 |
8—φ18 |
394 |
686 |
|
80 |
310 |
195 |
160 |
135 |
3 |
22 |
8—φ18 |
394 |
706 |
|
100 |
350 |
215 |
180 |
155 |
3 |
22 |
8—φ18 |
394 |
726 |
|
125 |
400 |
245 |
210 |
185 |
3 |
24 |
8—φ18 |
498 |
969 |
|
150 |
480 |
280 |
240 |
210 |
3 |
24 |
8—φ23 |
498 |
969 |
|
200 |
600 |
335 |
295 |
265 |
3 |
26 |
8—φ23 |
498 |
1009 |
|
250 |
622 |
390 |
350 |
320 |
3 |
28 |
12—φ23 |
620 |
1353 |
|
300 |
698 |
440 |
400 |
368 |
4 |
28 |
12—φ23 |
620 |
1390 |


