ZZY-BII供氮阀
一.用途与特点
指挥器操作型自力式压力调节阀(以下简称调压阀),是一种无需外来能源,利用被控介质自身能量作动力源,引入指挥器的检测执行机构,以控制调压阀的阀芯位置,改变流经阀门的介质流量,使阀后压力保持在恒定值.
该阀的特点:压力设定值可在指挥器上实现,在运行中可随意调整,因而方便、快捷、省力;控制精度比一般调压阀高一倍左右;减压比大;设定压力低等.
二.结构与原理
|
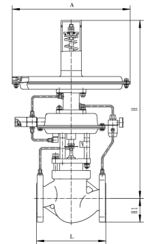
图一 |
调压阀由指挥器、主阀、节流阀、过滤减压器所组成(见图一)。介质由箭头方向进入阀体,经阀芯、阀座节流后输出。同时阀前介质经过滤减压器过滤减压后进入指挥器阀体,经指挥器调节后进入主阀执行机构上下膜室。阀后介质经接管引入指挥器检测膜室,当输出压力升高时,经指挥器和节流阀作用关闭主阀,直到阀后压力降低到设定值为止。同理,当输出压力降低时,经指挥器和节流阀作用开启主阀,直到阀后压力上升到设定值为止。
三.主要技术参数、外形尺寸及材料
1.主要技术参数(见表一)
表一
|
公称通径DN(mm) |
20 |
25 |
32 |
40 |
50 |
65 |
80 |
100 |
125 |
150 |
200 |
|||||||||||
|
额定流量系数Kv |
5 |
8 |
12.5 |
20 |
32 |
50 |
80 |
125 |
160 |
320 |
450 |
|||||||||||
|
公称压力PN(MPa) |
1.0 1.6 |
|||||||||||||||||||||
|
固有流量特性 |
快开 |
|||||||||||||||||||||
|
保证调压阀正常工作的 最小压差(Mpa) |
≥0.1 |
|||||||||||||||||||||
|
压力分段范围(Kpa) |
0.3~2 1~6 5~10 9~15 12~19 18~25 22~30 28~35 32~40 38~50 48~60 58~72 70~100 |
|||||||||||||||||||||
|
工作温度t(℃) |
<80 |
|||||||||||||||||||||
|
适用介质 |
气体 |
|||||||||||||||||||||
|
控制精度(%) |
≤8 |
|||||||||||||||||||||
|
允许 泄漏量 |
硬密封(l/h) |
IV级:≤10-4x阀额定容量 |
||||||||||||||||||||
|
软密封 (ml/min) |
20 |
25 |
32 |
40 |
50 |
65 |
80 |
100 |
125 |
150 |
200 |
|||||||||||
|
0.15 |
0.3 |
0.45 |
0.6 |
0.9 |
1.7 |
4.0 |
6.75 |
|||||||||||||||
2.外形尺寸(见表二、图一)
表二 单位:mm
|
公称通径(DN) |
20 |
25 |
32 |
40 |
50 |
65 |
80 |
100 |
125 |
150 |
200 |
|
L |
184 |
184 |
200 |
222 |
254 |
276 |
298 |
352 |
410 |
451 |
600 |
|
H |
530 |
530 |
550 |
560 |
597 |
612 |
620 |
640 |
650 |
670 |
800 |
|
H1 |
53 |
58 |
70 |
75 |
83 |
93 |
100 |
110 |
125 |
143 |
170 |
|
A |
282 |
||||||||||
|
重量(Kg) |
17 |
18 |
25 |
27 |
40 |
50 |
80 |
108 |
145 |
262 |
285 |
3.主要零件材料(见表三)
表三
|
零件名称 |
材料 |
温度范围(℃) |
|
阀体
阀盖 |
WCB |
-40-450 |
|
CF8 |
-250-550 |
|
|
CF8M |
-250-550 |
|
|
阀芯
阀座 |
0Cr18Ni9 |
-250-550 |
|
聚四氟乙烯 |
-40-200 |
|
|
橡胶 |
-20-100 |
|
|
填料(O型圈) |
聚氨脂橡胶 |
-20-100 |
|
硅橡胶 |
-40-250 |
|
|
膜片 |
丁晴橡胶夹增强涤沦织物 |
|
|
弹簧 |
60Si2Mn |
|
|
膜盖 |
Q235 |
|
四.安装调整与维护保养
1.安装
(1).安装前应检查产品型号、规格是否符合要求,管道应进行清洗,清除焊渣与杂物等,阀门应正立、垂直安装在管道上,介质流向应与阀体箭头一致。如有可能应设置旁通阀。
(2).为确保调压阀正常工作,在阀前应设置过滤器、压力表与手控阀,安装图见图二.
图二 调压阀安装图
2.使用
(1). 缓慢将调节阀前、后截止阀开到最大,此时因介质引入调节阀,可观察压力表示值。
(2). 逐渐关闭旁通阀,打开壳罩,并调整弹簧预紧力,直到压力表示值达到工艺要求为止。
(3).锁紧螺母,盖上壳罩。
3.维护保养
该装置投入正常运行后无需特殊维护,但需定期对指挥器、节流阀和过滤减压器进行清洗,若出现故障,按表四进行处理。
表四
|
故障现象 |
产生原因 |
排除方法 |
|
被控压力不能自动控制 |
控制管线堵塞 |
清洗控制管线 |
|
节流阀堵塞 |
疏通节流阀 |
|
|
膜片破裂 |
更换膜片 |
|
|
弹簧折断 |
更换弹簧 |
|
|
阀门口径选择过小 |
更换合适阀门 |
|
|
被控压力 不稳定 |
阀门口径选择过大 |
更换合适阀门 |
|
弹簧刚度过大或过小 |
更换合适弹簧 |
五.型号编制说明
Z Z Y P II B
|
产品 类别 |
Z |
|
|
|
|
|
|
执行器大类 |
|
|
|
Z |
|
|
|
|
|
自力式 |
||
|
|
Y |
|
|
|
|
||||
|
阀结构型式 |
P |
|
|
|
单座 |
||||
|
公称压力 |
10 |
|
1.0MPa |
||||||
|
16 |
|
1.6MPa |
|||||||
|
阀结构型式补充 |
II |
带指挥器型 |
|||||||
|
作用形式 |
B |
控制阀后压力 |
|||||||
六.订货须知
订货时请用户提供以下技术参数:
1.产品型号 2.公称通径 3.公称压力 4.介质种类、密度及温度 5.工作温度 6.阀前压力 7.阀后压力 8.介质流量
9.压力设定值及压力调节范围 10.法兰标准 11.其他
七.法兰尺寸
|
公称通径(DN) |
20 |
25 |
32 |
40 |
50 |
65 |
80 |
100 |
125 |
150 |
200 |
|
D |
105 |
115 |
140 |
150 |
165 |
185 |
200 |
220 |
250 |
285 |
340 |
|
D1 |
75 |
85 |
100 |
110 |
125 |
145 |
160 |
180 |
210 |
240 |
295 |
|
D2 |
56 |
65 |
76 |
84 |
99 |
118 |
132 |
156 |
184 |
211 |
266 |
|
b |
16 |
16 |
18 |
18 |
20 |
20 |
20 |
22 |
22 |
24 |
24 |
|
f |
2 |
2 |
2 |
2 |
2 |
2 |
2 |
2 |
2 |
2 |
2 |
|
n-φ |
4-14 |
4-14 |
4-18 |
4-18 |
4-18 |
4-18 |
8-18 |
8-18 |
8-18 |
8-22 |
8-22 |
注: 用户未指定时,本产品法兰连接尺寸按GB9113-2000标准.


